On the Jobsite

Set on a snowy hillside, this new build blends Adirondack style with Rocky Mountain presence. The palette consists of rich wood siding, floor-to-ceiling glass, and rugged stonework. Designed for a family deeply rooted in downhill skiing, the home’s location and architecture support an active, wellness-focused lifestyle. From its gym and sauna to the ski waxing bench, and easy access to the outdoors, both the interior and exterior programs are shaped by movement, recovery, and time spent on the mountain.
Above: Schematic drawings of the home's exterior
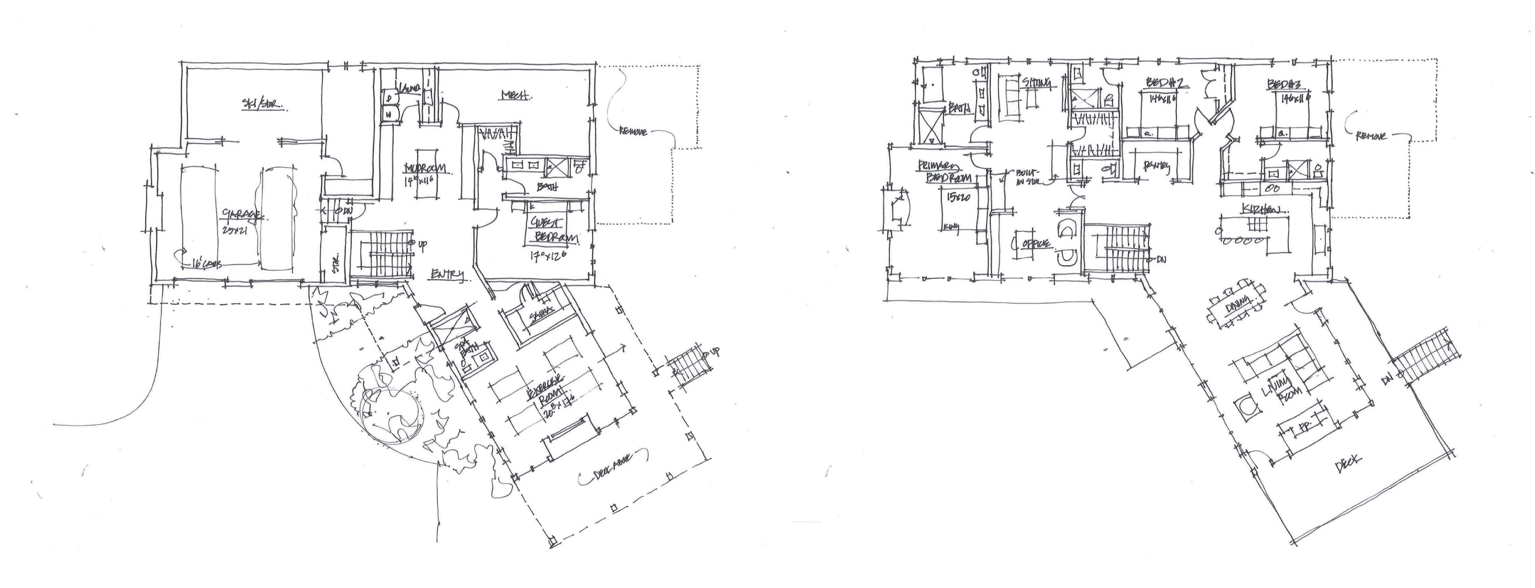
Above Left: Schematic plans of the lower floor. Above Right: Schematic plans of the upper floor
Under construction with Red House Building, and in collaboration with interior designer Inside Edit, this project is steadily taking shape into a year-round retreat crafted for adventure.
Above Left (2): Double rafts in the original interior. Above Right (2): Double raft inspiration on the new exterior.
Above Left: Original home garage. Above Right: New home garage
The design process began with an effort to preserve the original home. After thoughtful consideration, both CDG and the clients agreed that starting fresh would better support the long-term vision. One meaningful element carried forward: the double raft detail from the original interior, which now appears as a signature feature on the exterior of the new home.
Above Left: Antique AGA oven in the original kitchen. This was a keepsake the clients wanted to hold onto. Above Right: AGA in the new kitchen.
Above Left: A CDG 3D Sketchup rendering capturing the current layout of the great room. Above Right: Recent photo of the great room.
The home’s layout was reimagined to better capture its mountain surroundings, with each room intentionally positioned to frame the ski slopes. The great room was added as a new extension to the original structure (as it was once the location of a gazebo). A mix of warm wood species, a modern stone fireplace, and contemporary lighting make the space inviting for a gathering.
Above Left: A CDG 3D Sketchup rendering of the backside deck concept. Above Right: Progress photo of the backside deck
This was a fabulous, multifaceted project. Working closely with our clients, Red House Building and their subcontractors, Laura Heintz and the Inside Edit team, the experience has been truly rewarding. What began as a renovation ultimately became a full rebuild, resulting in a home that nods to its origins while more fully engaging its surrounding environment. We look forward to sharing professional photos soon.
Related Posts
This year our team has worked on a multitude of diverse and fascinating projects. Our drawings boards are full with renovations, additions,…
We’re passionate about designing sustainable homes that honor that beauty, using local materials, collaborating with local artisans, and creating spaces that honor both the landscape and the lifestyles of our clients.
Vermont Studio Center - Pearl House
"Realizing designs within the context of a master plan is much more of a living process than…